Лот №561275
МО, Мытищи, Новомытищинский пр-кт, 62, корп. 1

Карта

Панорама

Лот №561275

МО, Мытищи, Новомытищинский пр-кт, 62, корп. 1

м.
Общие параметры
Номер лота 561275
Тип объекта Помещение свободного назначения
Общая площадь м2 145
Планировка Открытая
Ремонт Shell & core
Этаж 1
Электрическая мощность кВт 29
Описание дома
Линия 1-я линия
Этажность 10
Тип помещения Встроенное
Количество отдельных входов 2
Детали
Линия 1-я линия
Коммерческие условия
Цена общая руб. 38 345 500
Цена за м2 руб. 265 000
Описание
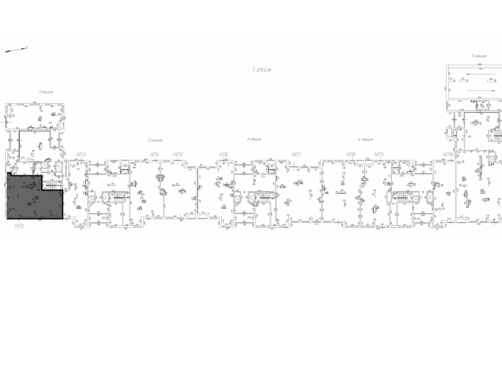
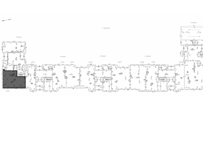
Продается помещение свободного назначения площадью 144, 7 кв.м на 1 этаже 10-этажного жилого дома в ЖК Атлантис.Объект введен в эксплуатацию. 6 км от МКАД. Плотный жилой массив.Интенсивный пешеходный трафик. Парковка перед фасадом.
Помещение продается в состоянии shell&core.1 линия домов, угловое помещение. 2 отдельных входа. Высота потолков 3, 5м. Витринное остекление. Электрическая мощность 29кВт. Место для размещения рекламы.
​​​​​​​Собственник юридическое лицо, ОСН.
38 345 500 руб.
498 172 $
426 004 €

Похожие предложения

  • 99 м²
МО, Пушкино, ЖК Новое Пушкино, корп. 21

МО, Пушкино, ЖК Новое Пушкино, корп. 21

Лот №561239
Общая площадь м2 99
Тип помещения Встроенное
Цена за м2 252 448, 75 3 342, 48 2 859, 55
  • 83 м²
Москва, ул. Дубравная

Москва, ул. Дубравная

Лот №561662
Общая площадь м2 83
Тип помещения Встроенное
Цена за м2 361 445, 78 4 695, 78 4 015, 53
  • 96 м²
Новая Москва, Поселение Марушкинское, корп. 1.2

Новая Москва, Поселение Марушкинское, корп. 1.2

Лот №561237
Общая площадь м2 96
Тип помещения Встроенное
Цена за м2 359 832, 64 4 797, 80 4 090, 25
  • 131 м²
МО, Пригород Лесное (пгт Мисайлово) мкр, имени Героя России Филипова ул

МО, Пригород Лесное (пгт Мисайлово) мкр, имени Героя России Филипова ул

Лот №562050
Общая площадь м2 131
Тип помещения Встроенное
Цена за м2 287 347, 56 3 776, 61 3 213, 77