Лот №561275
МО, Мытищи, Новомытищинский пр-кт, 62, корп. 1

Карта

Панорама

Лот №561275

МО, Мытищи, Новомытищинский пр-кт, 62, корп. 1

м.
Общие параметры
Номер лота 561275
Тип объекта Помещение свободного назначения
Общая площадь м2 145
Планировка Открытая
Ремонт Shell & core
Этаж 1
Электрическая мощность кВт 29
Описание дома
Линия 1-я линия
Этажность 10
Тип помещения Встроенное
Количество отдельных входов 2
Детали
Линия 1-я линия
Коммерческие условия
Цена общая руб. 38 345 500
Цена за м2 руб. 265 000
Описание
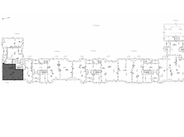
Продается помещение свободного назначения площадью 144, 7 кв.м на 1 этаже 10-этажного жилого дома в ЖК Атлантис.Объект введен в эксплуатацию. 6 км от МКАД. Плотный жилой массив.Интенсивный пешеходный трафик. Парковка перед фасадом.
Помещение продается в состоянии shell&core.1 линия домов, угловое помещение. 2 отдельных входа. Высота потолков 3, 5м. Витринное остекление. Электрическая мощность 29кВт. Место для размещения рекламы.
​​​​​​​Собственник юридическое лицо, ОСН.
38 345 500 руб.
513 363 $
437 770 €

Похожие предложения

  • 107 м²
Москва, Амурская ул

Москва, Амурская ул

Лот №561962
Общая площадь м2 107
Тип помещения Встроенное
Цена за м2 419 411, 21 5 448, 85 4 659, 50
  • 127 м²
МО, Юрлово д

МО, Юрлово д

Лот №562078
Общая площадь м2 127
Тип помещения Встроенное
Цена за м2 188 976, 38 2 483, 72 2 113, 56
  • 128 м²
Москва, Боровское шоссе, 2, корп. А

Москва, Боровское шоссе, 2, корп. А

Лот №560967
Общая площадь м2 128
Цена за м2 264 000 3 429, 80 2 932, 94
  • 89 м²
МО, Белая Дача мкр

МО, Белая Дача мкр

Лот №562059
Общая площадь м2 89
Тип помещения Встроенное
Цена за м2 313 901, 35 4 008, 74 3 428, 21