Лот №558780
Москва, ул. Кастанаевская, 16, корп. 1

Карта

Панорама

Лот №558780

Москва, ул. Кастанаевская, 16, корп. 1

м. Багратионовская
Общие параметры
Номер лота 558780
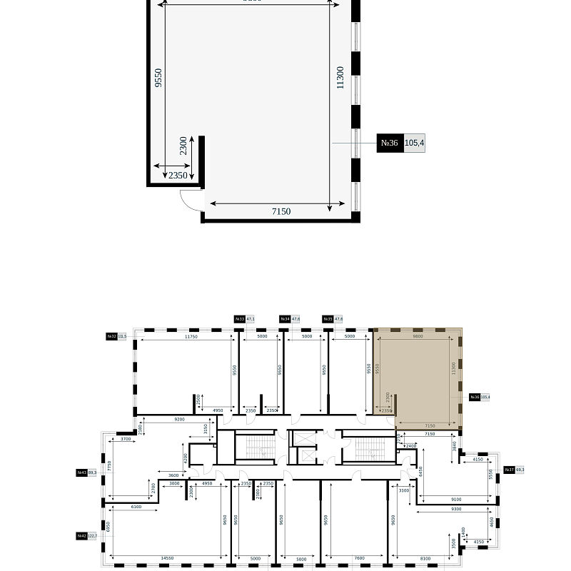
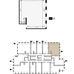
Тип объекта Офис
Общая площадь м2 105
Планировка Открытая
Ремонт Shell & core
Этаж 3
Описание дома
Линия 1-я линия
Этажность 9
Тип паркинга Подземный паркинг
Коммерческие условия
Цена общая руб. 54 302 080
Цена за м2 руб. 515 200
Описание
Продажа офиса в новом бизнес-центре класса "А" FILI RESIDENCE - идеальный выбор для тех, кому важен комфорт и удобство. Этот современный офисный блок расположен на 3 этаже 9-этажного дома всего в нескольких минутах ходьбы от метро Багратионовская. Площадь офиса составляет 105, 4 кв.м. и предлагает отличное сочетание цена-качество. В настоящее время ведется чистовая отделка, что позволит новому владельцу воплотить в жизнь свои дизайнерские идеи без необходимости проведения капитального ремонта. Рядом с бизнес-центром расположены различные учебные учреждения, в том числе школа №2101, Школа интеграл с дошкольным отделением, а также клинико-диагностический центр №4. В непосредственной близости можно посетить парк Победы, веревочный парк Пандапарк, а также детский центр Туса Джуса для развлечений.Не упустите возможность стать обладателем офиса в престижном бизнес-центре FILI RESIDENCE и создать идеальное рабочее пространство для своего бизнеса. Контактная информация для записи на просмотр и получения дополнительной информации: +7 (965) 125-48-00. Инвестируйте в свое будущее уже сегодня - выберите FILI RESIDENCE!
54 302 080 руб.
705 475 $
603 276 €

Похожие предложения

  • 119 м²
Москва, ул. Бауманская, 11

Москва, ул. Бауманская, 11

Лот №560181
Район Центральный
Общая площадь м2 119
Тип объекта Офис
Цена за м2 484 916, 25 6 299, 87 5 387, 24
  • 85 м²
Москва, пер. Холодильный, 3, корп. 1

Москва, пер. Холодильный, 3, корп. 1

Лот №560340
Район Южный
Общая площадь м2 85
Тип объекта Офис
Цена за м2 400 000 5 196, 67 4 443, 85
  • 149 м²
Москва, ул. Алексея Свиридова, 17

Москва, ул. Алексея Свиридова, 17

Лот №559782
Район Западный
Общая площадь м2 149
Тип объекта Офис
Цена за м2 435 870 5 662, 68 4 842, 35
  • 144 м²
Москва, ул. Верейская, 12

Москва, ул. Верейская, 12

Лот №561027
Общая площадь м2 144
Тип объекта Офис
Цена за м2 530 555, 60 6 958, 21 5 952, 12